11
OŽU

Više o usluzi izrade novog tlocrta

Na sljedećem primjeru želim pokazati mogućnosti ove jednostavne i pristupačne usluge. Radi se o prostoriji s nekoliko situacija koje je potrebno uzeti u obzir kod opremanja, a koja će služiti kao dječja soba za 2 dječaka. Osim zatečenog stanja, klijent želi, ukoliko je moguće, iskoristiti postojeći dječji krevet dimezija 125cm x 205cm te ormar širine 125 cm i dubine 55 cm:

Sami ulaz troši dio prostora, na jednom zidu postoji izbočina dubine 5 cm i zbog nje tu ne stane krevet standardnih dimenzija, dok se u kutu pokraj širokih balkonskih vrata nalazi fiksna podna klima koju je potrebno 'zaobići' s namještajem.

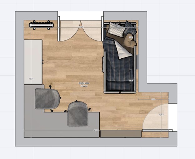
Prijedlog 1

Postojeći krevet i ormar naizgled stanu na najduži zid, no, međutim, kako bi u prostor stali pisaći stolovi koji će dječacima ubrzo biti potrebni, drugi krevet mora biti izrađen po mjeri kako bi zaobišao izbočinu na zidu, te bio kraći od 200 cm da bi u ovom rasporedu ulazak u prostoriju uopće bio moguć.

Već sada je jasno da je prostorija iskoristivija ukoliko se odbaci barem postojeći krevet i ide se na rješenje s krevetom na kat.

Prijedlog 2

Smještanjem kreveta na kat po mjeri pokraj balkonskih vrata, otvara se mogućnost dodavanja još jednog elementa u prostor poput police za knjige ili većeg garderobnog ormara te izdašne radne površine od zida do zida. Budući da su dječaci predškolarci, taj prostor se do polaska u školu može jednostavno urediti u prostor za igru, a naknadno dodati radni stol po mjeri sa stolicama za učenje. Ovdje je zadržan postojeći ormar.

Prijedlog 3

Kao i na prijedlogu 2, krevet na kat po mjeri smješten je pokraj balkonskih vrata, dok je postojeći ormar smješten podalje od izvora topline kako bi pored njega mogao stati kutni radni stol s dvije stolice te dodatni element na ulazu, poput police ili dodatnog garderobnog ormara.

Prijedlog 4

Ova varijanta smješta radnu površinu po mjeri pokraj balkonskih vrata na zid koji sadrži izbočinu jer je jednostavnije izraditi radnu površinu po mjeri nego krevet na kat po mjeri. Na ovaj način, krevet na kat može biti standardnih dimenzija, bez potrebe izrade potpuno prilagođenog rješenja po mjeri što svakako snižava ukupni trošak opremanja. Postojeći ormar je zadržan, a već sada, uz sve potrebne elemente, ima mjesta i za uređenje kutka za igru mališana što je svakako poželjno za dječju sobu.

Prijedlog 4 se ispostavio kao optimalno rješenje jer u maloj kvadraturi omogućuje sve željene elemente odmah, bez potrebe naknadnog uređenja, no budući da se ne radi o kompletnom idejnom rješenju, mogli smo ovako nastaviti razvijati pozicije namještaja praktički 'unedogled' jer pomicanje samih elemenata u alatu nije time-consuming, primjerice, odvažnije smjestiti u kut krevet na kat u L obliku s radnom površinom ispod svakog kreveta čime bi se pokraj balkonskih vrata mogao smjestiti garderobni ormar po mjeri do stropa - rješenje je to koje izbacuje sav postojeći namještaj i zahtjeva izradu svih elemenata po mjeri i iako neplanirano, otvara prostor klijentima za evaluiranje prvotne ideje o zadržavanju postojećih komada namještaja. Ono što ova usluga svakako pruža jest brzi vizualni pregled mnoštva mogućnosti i relativno lagano 'igranje' s pozicijama namještaja, njihovim veličinama, funkcijama i sl. Većinom rezultira prijedlozima kojih klijenti nisu svjesni ili, kao u ovom slučaju, pogrešno smatraju da odbacivanje postojećeg namještaja diže troškove uređenja. Krevet na kat standardnih dimenzija može biti čak i povoljnije rješenje od izrade drugog kreveta po mjeri, a donosi povećanje iskoristivosti ostatka prostora.

Dakle, ukoliko kupujete stan ili kuću i s obzirom na (malu) kvadraturu ili 'čudnovati' raspored dvojite stane li sve što vašoj obitelji treba i uz kakve potencijalne prilagodbe po mjeri/troškove, onda je ova usluga kao stvorena za Vas. Ukoliko Vam tlocrt s rasporedom namještaja nije dovoljan za vizualizaciju budućeg prostora, tada se ova usluga nadograđuje s uslugom 3D vizualizacije, primjerice za ovu situaciju prijedlog za potpuno prilagođeno idejno rješenje bi bio sljedeći:

Također, ako preuređujete postojeće prostorije, razmislite o ovoj usluzi jer nikad ne znate jeste li uzeli u obzir sve moguće varijante rasporeda namještaja s obzirom na dostupnost različitih rješenja na tržištu, ili alternativno, da potvrdite da je Vaš odabrani smjer optimalan, kako estetski tako i funkcionalno 😉